La Revista de Arquitectura se cataloga como una publicación de acceso abierto. Más información >>>
Los autores conservarán los derechos de autor y garantizarán a la Revista de Arquitectura el derecho de primera publicación de la obra, el cual estará simultáneamente sujeto a la licencia Creative Commons (CC) BY-NC.
Los autores suscribirán una licencia no exclusiva de distribución de la versión de la obra publicada mediante la firma de (RevArq FP03 Autorización reproducción)
El Autoarchivo estará de acuerdo con los criterios expresados por SHERPA/RoMEO y la clasificación Verde.
Para ver en detalle estos lineamientos, por favor consultar >>>
Resumen
El objetivo del artículo es proporcionar una aproximación descriptiva, analítica y reflexiva al trabajo del arquitecto brasileño Eduardo de Almeida. El método de aproximación es una promenade por sus 54 años de obras, siguiendo un paseo interpretativo que Almeida propuso en la conferencia que el arquitecto dio en 2014 realizada en São Paulo. Se combinan aquí la visión del creador y la del crítico, a partir de la interpretación de obra e ideas. Los puntos centrales del trabajo ponen en evidencia algunos rasgos fundamentales de la producción del arquitecto: rigor, racionalidad, pensamiento tectónico y modular, sensibilidad y discreción. Estos elementos condicionan, al mismo tiempo que determinan, los resultados de los proyectos discutidos. Aunque por razones metodológicas no llegamos a ninguna conclusión, la promenade evidenció que el trabajo de creación desarrollado por Almeida fue producto de una constante superposición esclarecedora de imágenes de racionalidad y de análisis sobre su propia práctica arquitectónica que, determinada por el oficio, fue construyendo la postura del arquitecto.
Citas
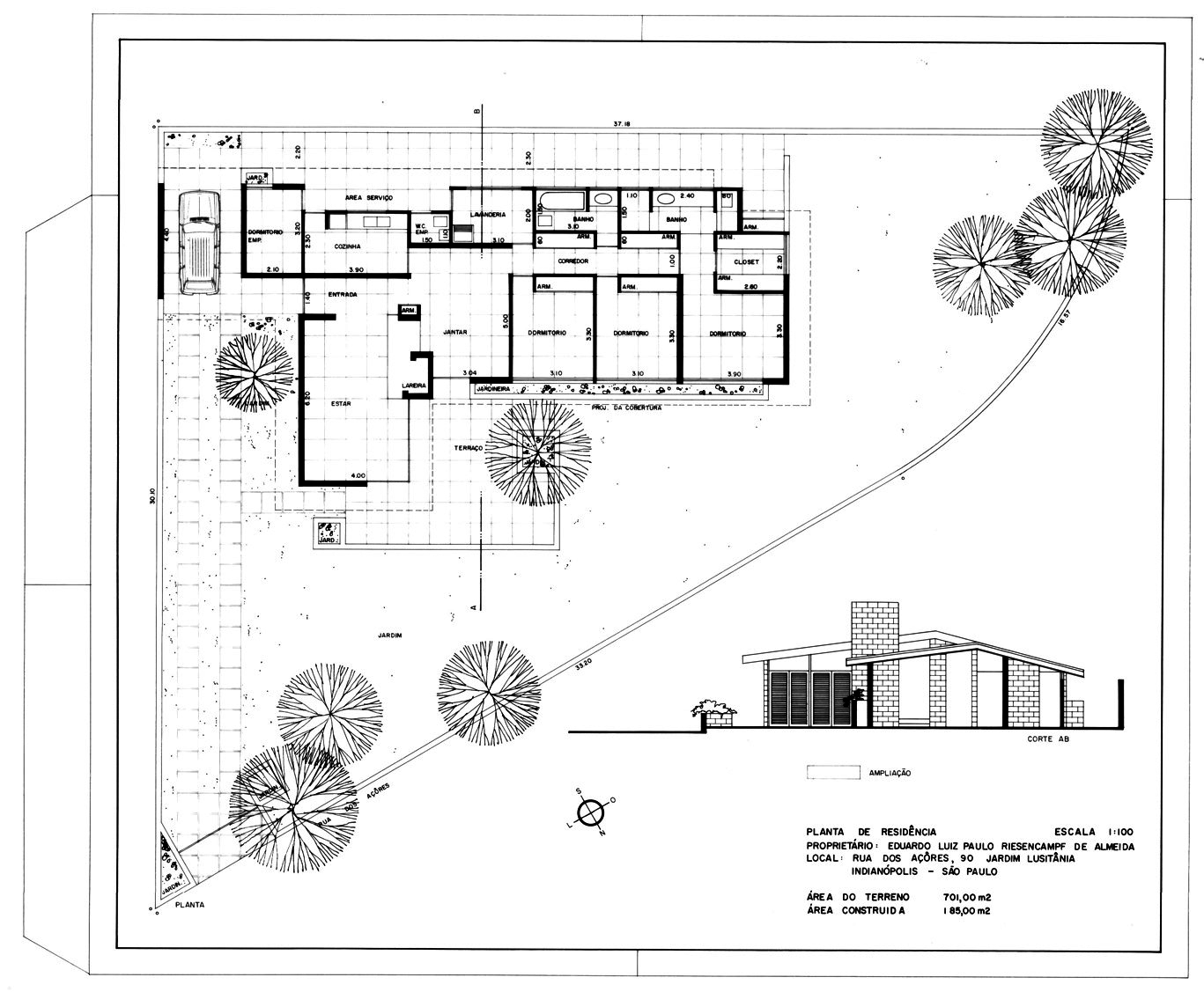
Almeida, E. de (1958). Residência rua dos açores, arquivo Eduardo de Almeida, proyecto 3, tubo 4 [Dibujo]. Recuperado de: http://arquivoeduardodealmeida.com/3-residencia-rua-dos-acores/
Almeida, E. de (1973). Residência praia da baleia, arquivo Eduardo de Almeida, proyecto 70. Tubos 65 e 65 A. [Dibujo]. Recuperado de: http://arquivoeduardodealmeida.com/70-residencia-praia-da-baleia/
Almeida, E. de (1993). Residência Pacheco e Silva (proyecto 181. Tubos 33, 33 A y 33B, Caja 4600 y Backup 302). AEA, Arquivo Eduardo de Almeida, São Paulo [Fotografía]. Recuperado de: http://arquivoeduardodealmeida.com/181-residencia-pacheco-esilva/
Almeida, E. de (2014). Eduardo de Almeida, arquiteto. En Nascimento, M .A. (Presidencia). 6° Simpósio de Arquitetura e Urbanism. Trajetórias: do ofício ao ensino da arquitetura. Simposio llevado a cabo en el Centro Universitário SENAC, São Paulo: 24 de octubre de 2014.
Artigas, J. B. V. (2004). Caminhos da arquitetura. São Paulo: Cosac Naify.
Francastel, P (1990). Sociología del arte. Madrid: Alianza.
Guadet, J. (1910). Éléments et théorie de l'architecture (vol. 3). Paris: Librairie de la Construction Moderne, en face de l'École des Beaux-Arts.
Guerra, A. (org.). (2006). Eduardo de Almeida. Coleção Arquiteto Brasileiro Contemporâneo (vol. 1). São Paulo: Romano Guerra.
Hertzberger, H. (1996). Lições de arquitetura (Traducción de Machado, C.E.). São Paulo: Martins Fontes.
Imbronito, M. I. (2003). Três Edifícios de habitação para a Formaespaço: Modulares, Gemini e Protótipo. Anais do 5° Seminário Docomomo Brasil. São Carlos: SAP/EESC/USP.
Imbronito, M. I. (2008). Procedimento de projeto com base em retículas: estudo de casas de Eduardo de Almeida (Tesis de Doctorado). Faculdad de Arquitectura y Urbanismo, Universidad de São Paulo, FAU USP. doi:10.11606/T.16.2008.tde-29032010-110819
Iwamizu, C. S. (2015). Eduardo de Almeida: reflexões sobre estratégias de projeto e ensino (Tesis de Doctorado). Facultad de Arquitectura y Urbanismo, Universidad de São Paulo. doi:10.11606/T.16.2015.tde-29102015-102522
Kamita, J. M. (2000). Vilanova Artigas. São Paulo: Cosac & Naify.
Ligtelijn, V. (1999). Aldo van Eyck-Works. Basel: Birkhauser-Publishers for Architecture.
Macedo, R. (2014). A influência de Mies van der Rohe na arquitetura paulista: 1950-1970 (Disertación de Maestría). São Paulo, Universidad São Judas Tadeu. Recuperado de: https://www.usjt.br/biblioteca/mono_disser/mono_diss/2014/293.pdf
Montaner, J. M. (2001). Depois do movimento moderno: arquitetura da segunda metade do século XX. Barcelona: Gustavo Gili.
Piñón, H. (2005). Eduardo de Almeida. Barcelona: Edicions UPC / ETSAB.
Piñón, H. (2006). Teoria do Projeto (trad. de Edson Mahfuz). Porto Alegre: Livraria do Arquiteto.
Pisani, D. (2013). Paulo Mendes da Rocha: obra completa. Barcelona: Gustavo Gili.
Smithson, A. (ed.). (1966). Manual del Team 10. Buenos Aires: Librería Nueva Visión.
Solá-Morales, I. (2002). Territorios. Barcelona: Gustavo Gili.
Unamuno, M. de (1922). Andanzas y visiones españolas. Madrid: Renacimiento.
Wakahara, J. A. (1970). Edifício gemini (proyecto 48. Tubos 52 y 53, Caja 1400). AEA, Arquivo Eduardo de Almeida, São Paulo [Fotografía]. Recuperado de: http://arquivoeduardodealmeida.com/48-edificio-gemini/
Wakahara, J. A. (1973a). Edifício modular coronet (proyecto 49. Caja 1400). AEA Arquivo Eduardo de Almeida, Sao Paulo [Fotografía]. Recuperado de: http://arquivoeduardodealmeida.com/49-edificio-modular-coronet/
Wakahara, J. A. (1973b). Residência pedro tassinari (número del proyecto 29. Tubo 61 e 61-). AEA, Arquivo Eduardo de Almeida, São Paulo [Fotografía]. Recuperado de: http://arquivoeduardodealmeida.com/29-residencia-pedro-tassinari/
Wakahara, J. A. (1973c). Residência jean sigrist (número del proyecto 69. Tubos 50, 50 A, 50 B e 50 C). AEA, Arquivo Eduardo de Almeida, São Paulo [Fotografía]. Recuperado de: http://arquivoeduardodealmeida.com/69-residencia-jean-sigrist
Wakahara, J. A. (1975). Residencia max define (proyecto 86. Tubos 39 e 39 A). AEA, Arquivo Eduardo de Almeida, Sao Paulo [Fotografía]. Recuperado de: http://arquivoeduardodealmeida.com/86-residencia-max-define-2/



