https://doi.org/10.14718/RevArq.2025.27.5624


El impacto de BIM en la coordinación de proyectos:
investigación de interferencias

The impact of BIM on Project Coordination:
Clash Detection



Pedro Praia 1
João da Costa-Pantoja 2
Márcio Roma-Buzar 3
Nathaly Sarasty-Narváez 4

1 Universidad de Brasilia (UnB), Brasilia (Brasil)
https://ror.org/02xfp8v59
Arquitecto y urbanista, Centro Universitario de Brasilia (CEUB). Brasilia (Brasil)
Magíster en Arquitectura y Urbanismo, Universidad de Brasilia (UnB). Brasilia (Brasil)
Doctor en Arquitectura y Urbanismo, Universidad de Brasilia (UnB) Brasilia (Brasil)
Universidad de Brasilia (UnB), Facultad de Arquitectura y Urbanismo. Brasilia (Brasil)
https://scholar.google.com/citations?hl=pt-BR&user=9x4IKNkAAAAJ
0000-0001-8784-1870
arqpedropraia@gmail.com

2.Universidad de Brasilia (UnB), Brasilia (Brasil)
https://ror.org/02xfp8v59
Ingeniero civil, Universidad de Brasilia (UnB). Brasilia (Brasil)
Magíster en Estructuras, Universidad de Brasilia (UnB). Brasilia (Brasil)
Doctor en Estructuras, Pontificia Universidad Católica de Río de Janeiro. Río de Janeiro (Brasil)
Universidad de Brasilia (UnB), Facultad de Arquitectura y Urbanismo, Laboratorio de rehabilitación del ambiente construido (LabRAC). Brasilia (Brasil)
https://scholar.google.com/citations?hl=pt-BR&user=hu8mEF4AAAAJ
0000-0002-0763-0107
joaopantoja@unb.br

3 Universidad de Brasilia (UnB), Brasilia (Brasil)
https://ror.org/02xfp8v59
Ingeniero civil, Universidad Estadual de Maranhão. São Luiz (Brasil)
Magíster en Estructuras, Universidad de Brasilia (UnB). Brasilia (Brasil)
Doctor en Estructuras, Universidad de Brasilia (UnB). Brasilia (Brasil)
Universidad de Brasilia (UnB), Facultad de Arquitectura y Urbanismo, Laboratorio de rehabilitación del ambiente construido (LabRAC). Brasilia (Brasil)
https://scholar.google.com/citations?hl=pt-BR&user=TFfeN9wAAAAJ
0000-0002-1164-2784
buzar@unb.br

4 Universidad de Brasilia (UnB), Brasilia (Brasil)
https://ror.org/02xfp8v59
Ingeniera civil, Universidad de Nariño. Pasto (Colombia)
Magíster en Estructuras, Pontificia Universidad Católica de Río de Janeiro. Río de Janeiro (Brasil)
Doctora en Estructuras, Universidad de Brasília (UnB). Brasilia (Brasil)
Universidad de Brasilia (UnB), Facultad de Arquitectura y Urbanismo, Laboratorio de rehabilitación del ambiente construido (LabRAC). Brasilia (Brasil)
https://scholar.google.com/citations?user=Of6r-s4AAAAJ&hl=pt-BR&oi=ao
https://orcid.org/0000-0002-6846-9257
nathaly.sarasty@unb.br


Enviado: noviembre 01 / 2023
Evaluado: febrero 24 / 2024
Aceptado: abril 23 / 2025


CÓMO CITAR: Praia, P., da Costa-Pantoja J., Roma-Buzar M., y Sarasty-Narváez, N. (2025). El impacto de BIM en la coordinación de proyectos: investigación de interferencias. Revista de Arquitectura (Bogotá), 27(2), 191-204. http://dx.doi.org/10.14718/RevArq.2025.27.5624


RESUMEN

Este artículo presenta un análisis y una comparación entre el proceso de coordinación tradicional utilizado por oficinas de proyectos de arquitectura y el método de coordinación automatizada disponible usando la metodología BIM, con un enfoque en proyectos estructurales. El objetivo principal de este estudio es evaluar los benefícios que la sistematización y la automatización de la coordinación aportan a las empresas del sector de arquitectura, ingeniería y construcción que adoptan la tecnología BIM. Para ello, se lleva a cabo una investigación que mapea el procedimiento actual de coordinación en una oficina de arquitectura y lo compara con el proceso automatizado aplicado en dos casos de estudio reales desarrollados en la misma empresa. El estudio de caso revela que el proceso de coordinación mejora considerablemente cuando se emplean herramientas de detección automática, superando la eficacia del método híbrido actualmente en uso. Además, los resultados subrayan que, si bien la adopción exclusiva del BIM por la oficina de arquitectura conlleva beneficios significativos en las etapas de concepción, modelado y documentación, para lograr una coordinación efectiva y detectar conflictos de manera óptima, es necesario que todo el proyecto se desarrolle utilizando herramientas compatibles con BIM. Este hallazgo destaca la importancia de una implementación integral de tecnologías BIM en todas las fases del proyecto para maximizar su eficiencia y evitar posibles discrepancias durante la ejecución.

Palabras clave: BIM; coordinación; detección de interferencias; interoperabilidad; proyecto estructural


ABSTRACT

This article presents an analysis and comparison between the traditional coordination process used by architectural project offices and the automated coordination method available through 3uilding Information Modeling (BIM), with a focus on structural projects. The main objective of this study is to evaluate the benefits that systematization and automation of coordination bring to companies in the architecture, engineering, and construction sector that adopt BIM technology. To this end, the study maps the current coordination procedure in an architectural office and compares it with the automated process applied in two real case studies developed by the same firm. The case study reveals that the coordination process improves significantly when automated clash detection tools are used, surpassing the effectiveness of the hybrid method currently in place. Moreover, the results emphasize that while the exclusive adoption of BIM by the architectural office yields significant benefits during the design, modeling, and documentation stages, effective coordination and optimal conflict detection require the entire project to be developed using BIM-compatible tools. This finding highlights the importance of comprehensive BIM implementation across all project phases to maximize efficiency and avoid potential discrepancies during execution.

Keywords: BIM; compatibility; clash detection; interoperability; structural project


INTRODUCCIÓN


En la industria de la construcción, el proceso de transformación digital impulsado por la tecnología Modelado de Información de Construcción (BIM, por sus siglas en inglés de Building Information Modeling) está redefiniendo la forma en que se conciben, ejecutan y gestionan los proyectos en entornos digitales, fusionando descripciones geométricas minuciosas con capas de información complementaria, como cantidades de materiales, presupuestos y atributos estructurales (Cardoso y Burbano, 2020).

Uno de los principales beneficios es la capacidad para detectar fallas e incongruencias entre los proyectos involucrados, lo que permite identificar problemas que, de otra manera, solo se descubrirían en el lugar de construcción. Esta capacidad no solo reduce los gastos y los costos finales de la obra, sino que también promueve la eficiencia y la calidad en todas las etapas del proceso de construcción. Aunque la adopción de BIM puede parecer como un aumento de los costos iniciales de un proyecto, este aparente sobrecosto se compensa rápidamente con los beneficios que se extienden a lo largo del ciclo de vida del edificio. La minimización de errores, la reducción de desperdicios y la colaboración anticipada entre todas las partes involucradas se traducen en ahorros sustanciales y en una notable disminución del costo total del edificio (Bardales et al., 2021; Cao et al, 2015).

La colaboración anticipada entre todos los involucrados es uno de los aspectos fundamentales del uso de la tecnología BIM en la fase de proyecto. Aunque la colaboración por documentos separados aún es posible, resulta inherentemente más difícil y lenta en comparación con la interacción con modelos 3D coordinados, donde el control de modificaciones puede gestionarse eficazmente (Eastman et al., 2014). En este contexto, la tecnología BIM desempeña un papel central, no solo en las oficinas de arquitectura e ingeniería, sino también en las empresas constructoras.

Es importante destacar que, a pesar de las numerosas ventajas que ofrece el BIM, aún son escasas las iniciativas de colaboración entre empresas privadas e instituciones académicas en el campo de la arquitectura, ingeniería y construcción (AEC). En Brasil, según los datos presentados por Sienge y Grant Thornton en 2020, el 61,59% de las empresas todavía no habían adoptado la metodología BIM. Una posible estrategia para fomentar la adopción del BIM es la imple-mentación del Decreto 10306 del 2 de abril del 2020, que establece la estrategia conocida como BIM BR. Esta estrategia tiene como objetivo principal invertiren acciones de marketing)/ difundir el concepto del BIM, con el fin de impulsar la productividad, promover la adopción del modelo, reducir costos y estimular el crecimiento del PIB en el sector de la construcción, como se destaca en el documento Decreto 9377, del 17 de mayo de 2018. Sin embargo, las ambigüedades con respecto a la compatibilidad como un posible factor clave en la adopción de BIM han frenado el desarrollo de una comprensión clara del proceso de adopción. Esto ha resultadoen una predicción inexacta de la ¡mplementación y una baja tasa de adopción de BIM (Sienge, 2020; Hong et al, 2018). Esta brecha ha suscitado el interés de los autores en realizar un estudio detallado sobre la aplicación de la plataforma BIM en el proceso de modelado y coordinación de proyectos estructurales en desarrollos inmobiliarios. Un análisis minucioso de los procesos de diseño y coordinación de sistemas estructurales en edificios comerciales puede proporcionar a las empresas una ventaja competitiva significativa a través de análisis compartidos, enfoque multidisciplinario y sistematización de procesos (Arayici et al, 2011; Succary Kassem, 2015).

En este estudio se utilizaron modelos simulados en Autodesk Revit y en el software Navisworks para investigar el proceso de coordinación de proyectos en BIM. La metodología incluyó la investigación de las herramientas BIM disponibles en el mercado brasileño, la realización de un estudio de caso con un modelo BIM de un edificio comercial, la caracterización del proceso de coordinación utilizando herramientas de modelado de construcción y un análisis comparativo, cuantitativo y cualitativo, entre las interferencias físicas identificadas en el modelo BIM y las encontradas en el método tradicional de coordinación en 2D/3D, con la clasificación de los problemas según su origen. Esta aproximación proporciona una comprensión integral del proceso de coordinación de proyectos en el contexto BIM.

Coordinación de proyectos mediante BIM

La aplicación de la técnica de modelado de información en la coordinación de proyectos ofrece notables beneficios en términos de seguridad y eficiencia en la construcción de edificaciones. Los proyectos están compuestos por múltiples sistemas (estructural, hidráulico, eléctrico, etc.) desarrollados por diferentes profesionales. Idealmente, para que este proceso funcione de manera eficaz, todos los profesionales involucrados deberían mantener una comunicación continua que permita la identificación de interferencias entre los proyectos y la realización de cambios basados en análisis de diversos escenarios y sus impactos. Una de las estrategias es el uso del formato de datos IFC (por sus siglas en inglés de Industry Foundation Classes), diseñado para permitir el intercambio de información sin pérdida o distorsión de información entre los participantes del proyecto (de Paula et al, 2017). Sin embargo, en el cotidiano de la industria de la construcción, esta aproximación no siempre es posible, ya sea debido a diferencias entre los participantes, plazos ajustados o la persistencia de métodos de trabajo tradicionales, a menudo dependientes de softwares no adecuados para proyectos BIM y flujos de trabajo no colaborativos (Oh et al, 2015).

Las aplicaciones de BIM se están introduciendo cada vez en la industria de la construcción y en la academia, y se han recomendado numerosas aplicaciones de BIM en la literatura. Sin embargo, la cobertura de la teoría de la difusión de BIM — que combina cuestiones contextúales y técnicas de las aplicaciones— sigue siendo escasa y poco desarrollada (Shirowzhan et al, 2020). Los académicos de diferentes disciplinas informan que algunas razones para la baja tasa de adopción de sistemas de información como BIM y sistemas de información gráfica (GIS) están asociadas a la compatibilidad (Shirowzhan et al, 2020; Zuluaga y AIbert et al, 2018).

Como destacaron Howell y Batcheler (2005), la búsqueda de un enfoque de acceso no propietario a los datos BIM se ha convertido en una prioridad crucial en la industria, con el objetivo de mitigar problemas recurrentes relacionados con la redundancia de entrada de datos. La interoperabilidad desempeña un papel destacado en este contexto, pues permite la reutilización de datos de proyectos previos y garantiza la coherencia entre los modelos que representan las distintas dimensiones de un edificio desde diversas perspectivas. En este contexto, la interoperabilidad se refiere a la capacidad de identificar qué información debe transferirse entre aplicaciones (Eastman, 2011). Cuando la interoperabilidad funciona eficientemente, se elimina la necesidad de duplicar la información, lo cual simplifica el flujo de trabajo entre diferentes aplicaciones durante el proceso de diseño de manera automáticaysin obstáculos (Dias y Arantes, 2015).

La coordinación evalúa en qué medida el BIM se ajusta a la experiencia, necesidades y valores de un usuario. Dado que la industria de la construcción está altamente fragmentada —debido a que involucra varias partes interesadas, cada una con diferentes valores y requisitos— y que utiliza diversas plataformas de software, es esencial llevar a cabo una investigación cuidadosa de la compatibilidad, a nivel tanto organizacional como técnico (Gourlis y Kovacic, 2017). Las herramientas de detección de conflictos e interferencias entre proyectos basadas en BIM, durante el proceso de coordinación de disciplinas, ofrecen numerosas ventajas en comparación con los métodos tradicionales. El antiguo método de superponer planos en una mesa de luzes impreciso, lento, propenso a errores y requiere que todos los diseños estén actualizados. El proceso más utilizado hoy en el mercado brasileño, que se basa en el uso de herramientas CAD 2D para superponer capas e identificar conflictos e interferencias, también resulta ineficiente y lento (Zardo et al, 2020).

Pereira (2016) afirma que, con los modelos BIM, es posible realizar la verificación automática de interferencias entre diferentes especialidades, como, por ejemplo, cuando un elemento estructural sea atravesado por un conducto de aire. Sin embargo, el proceso de detección de conflictos utilizando simplemente modelos de geometría 3D que contienen información geométrica (CAD 3D) detecta un gran número de interferencias sin sentido, en la mayoría de los casos. Por ejemplo, pueden identificarse falsos choques entre superficies simplemente porque un muro está conectado a otro, o porque una tuberíaatraviesaunmurocomopartedeldiseño previsto. Otra situación que podría provocar la falla en la detección mediante métodos tradicionales sería cuando las geometrías no son sólidas o carecen de un significado de objeto. En este caso, la herramienta de detección de interferencias no será capaz de identificar conflictos entre elementos que se encuentran dentro de otros objetos. Además, la clasificación de conflictos en categorías significativas se ve fuertemente obstaculizada debido a la falta de información incorporada en estos simples modelos de geometría 3D (Eastman et al, 2014). La información presentada por Ferreira y Santos (2007) en la Tabla 1, indica que un proyecto elaborado en 2D depende de deducciones a partir de información similar, frecuentemente incompleta, duplicada o fragmentada. Estos problemas pueden resolverse en principio al adoptar el uso de herramientas de coordinación en un modelo BIM.

Tabla 1. Características de la representación en 2D que dificultan la interoperabilidad

Fuente: adaptada de Ferreira y Santos (2007)


Por otro lado, las herramientas y programas informáticos de detección de conflictos basados en BIM, como Navisworks, permiten combinar la detección automática de interferencias geométricas con análisis basados en reglas y semántica, lo que facilita una detección de conflictos cualificada y estructurada como se muestra en la Figura 1. La interferencia ocurre cuando dos elementos se encuentran en la misma zona. Las interferencias pueden ser de tipo geométrico, de horarios superpuestos o cambios de diseño. Existen tres tipos de conflictos o interferencias: 1) Hard Clash: dos elementos que se superponen en el mismo espacio; 2) Soft Clash: tolerancia geométrica o de distancia entre componentes con respecto a otros componentes; 3) Colisión 4D/Workflow: colisión que afecta al flujo de trabajo y a los horarios (Arumsari y Al'farisi, 2017). Una de las principales dificultades en la implementación de BIM en las oficinas de arquitectura es la capacitación de los profesionales y el uso del software por los agentes involucrados en el proyecto. Según Goes (2011), incluso los modelos centrales de coordinación, cuando se someten al proceso de detección de conflictos, requieren una verificación visual del modelo 3D, ya que muchas veces las interferencias e incompatibilidades son resultado de un error en el modelo tridimensional.

Figura 1. Ejemplo de detección de conflictos utilizando Navisworks

Fuente: Autodesk (2024) [fotografía]. https://www.autodesk.com.br/products/navisworks


Las herramientas BIM brindan a los coordinadores de proyectos (conocidos como BIM Managers) la capacidad de realizar análisis detallados y precisos de las interacciones entre diferentes disciplinas de manera selectiva. Esto incluye la identificación de conflictos e interferencias entre proyectos estructurales y de saneamiento, ya que cada componente en el modelo está asignado a una disciplina específica. Esta flexibilidad permite que el proceso de detección de conflictos se realice con varios niveles de detalle y en diversas especialidades, lo que hace posible verificar diversos factores.

Por ejemplo, los coordinadores pueden identificar situaciones en las que el espacio entre los componentes hidráulicos y el contrapiso no cumplen los requisitos mínimos. Este análisis refinado es viable solo cuando se trabaja con modelos bien definidos y estructurados, como lo menciona Eastman (2011). El BIM y sus herramientas asociadas demuestran habilidades en el manejo de información multidisciplinaria durante el ciclo de vida del proyecto. Por lo tanto, esta capacidad ofrece oportunidades para respaldar las prácticas de construcción sostenible (Akbari et al., 2024).

METODOLOGÍA

El método de investigación adoptado es el de un análisis comparativo entre dos métodos de detección de conflictos en modelos 3D: el método híbrido y el método de detección de choques conocido como clash detection en BIM, mediante un estudio de caso. Dado que no había criterios predefinidos para relacionar interferencias en el proceso de coordinación, se desarrollaron criterios específicos para esta investigación con el fin de regular el proceso de detección de conflictos que involucra elementos estructurales. Como punto de partida, los correos electrónicos intercambiados entre las oficinas de diseño desempeñaron un papel fundamental en la categorización de los tipos de conflictos y en la creación de una matriz comparativa entre elementos constructivos. Este enfoque híbrido, que combina procesos manuales y automáticos, se utilizó a lo largo del trabajo.

La oficina de arquitectura Fittipaldi Arquitetura optó por un enfoque híbrido en la verificación de conflictos e interferencias, ya que no recurrió a programas de detección automática para identificar estas incompatibilidades. En su lugar, adoptaron un enfoque visual basado en modelos tridimensionales, combinando la tradicional verificación en 2D con el uso de modelos y visualizaciones en tres dimensiones. La oficina aún se encuentra en proceso de transición total de los procesos del método tradicional al BIM (nivel de madurez 1). A pesar de que todo el proceso de creación y ejecución de los proyectos de arquitectura se realiza en BIM, los proyectos complementarios aún se reciben en formato CAD en algunas ocasiones, lo que dificulta la aplicación total del proceso BIM completo, incluyendo la fase de revisión de interferencias.

En el segundo análisis se utilizó la herramienta de detección de conflictos en el software Revit, seguida de pruebas y análisis de la herramienta clash detection disponible en el software Navisworks Manager. Las principales diferencias entre el proceso híbrido implementado en la oficina y el proceso BIM aplicado en este estudio radican en la forma en que se gestionaron los tipos de conflictos y los grupos de elementos a verificar. En el primer caso, la categorización y sistematización se realizaron manualmente, utilizando un método visual de búsqueda. En contraste, en el proceso BIM, este procedimiento se automatiza mediante la clash detection. Para llevar a cabo este estudio, se generó un modelo central federado que abarca todas las disciplinas dentro del software Revit. Posteriormente, este modelo central se importó al software Navisworks, donde se llevó a cabo el proceso de detección de conflictos.

RESULTADOS

Descripción del proyecto

Se trata del edificio de recepción del Condominio Jardim Genebra, ubicado en Brasilia, Brasil. Es un edificio de tamaño mediano que incluye un salón de fiestas, cocina gourmet, sala de administración, oficina del arquitecto, baños, garita central de monitoreo, almacén, comedor para empleados, vestuarios, taller de herramientas y garaje (Figura 2).

Figura 2. Imagen renderizada a partir del modelo BIM

Fuente: Fittipaldi Arquitectura (2023)


El edificio tiene una estructura mixta y una cubierta de un solo plano con una inclinación del 8%. El concepto arquitectónico adoptado incluye columnas en los extremos de la cubierta y un sistema de vigas con perfiles I en el contorno de la cubierta. La estructura de este edificio combina elementos metálicos para la cubierta y las columnas externas, mientras que las columnas y vigas internas son de concreto armado moldeado in situ.

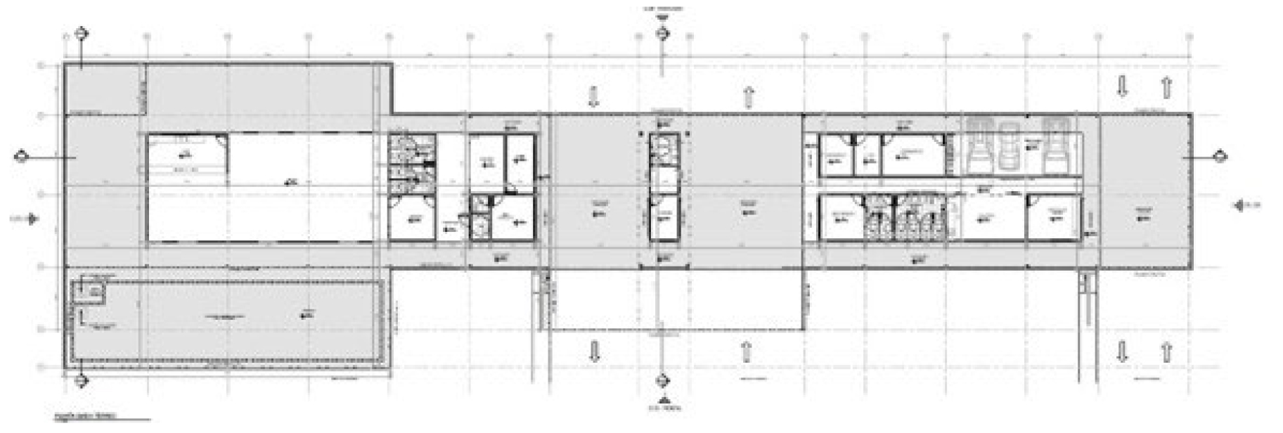
Además, el aislamiento térmico y acústico se garantiza mediante tejas especiales con muros de albañilería. Este edificio abarca una superficie de aproximadamente 2.650 m2 (Figura 3), siguiendo un concepto horizontal y construido sobre una malla estructural modular. Cabe destacar la presencia de un amplio porche que rodea todo el edificio, que funciona como alero y reduce la incidencia directa de la radiación solar en los espacios interiores.

Figura 3. Planta del edifício de recepción del condominio Jardim Genebra

Fuente: Fittipaldi Arquitetura (2023).


Coordinación híbrida

En este estudio de caso, todas las oficinas contratadas optaron por desarrollar sus proyectos utilizando programas BIM. Proporcionaron tanto los proyectos en CAD 2D como modelos BIM de cada disciplina, junto con la información no geométrica relevante. Se recibieron archivos tanto en formato IFC, creados en diferentes programas, como modelos de Revit. En el alcance de esta investigación, se llevó a cabo el análisis y la coordinación de los proyectos de arquitectura, concreto y estructura metálica, confrontando los elementos constructivos de cada disciplina. Es importante destacar que todos los proyectos relacionados con este edificio fueron concebidos y modelados utilizando software de la plataforma BIM.

En la oficina de arquitectura Fittipaldi, una de las principales dificultades radica en la limitación en el uso de software de coordinación y sus respectivas herramientas de detección de conflictos. Esto resulta en la necesidad de realizar el proceso de compatibilidad de manera visual, a pesar de utilizar maquetas electrónicas en BIM. En este método, los recursos y ventajas esenciales de la verificación digital, incluida la detección de conflictos, no se aprovechan plenamente. Sin embargo, es importante destacar que este enfoque ya representa un avance significativo en comparación con el método tradicional en 2D (Figura 4).

Figura 4. Comparación entre la construcción y el modelo BIM

Fuente: Fittipaldi Arquitetura (2023).


El proceso de verificación se definió como híbrido debido a la combinación de la técnica puramente visual de los procesos de análisis de interferencias en dos dimensiones, pero con modelos tridimensionales y la búsqueda de choques e interferencias estrictamente visuales. La comunicación se realiza a partir de imágenes extraídas del modelo en el que se insertan todas las disciplinas simultáneamente. En la Tabla 2, se muestra la relación de las interferencias físicas.

Los conflictos identificados se comunicaron de diversas maneras, incluyendo el uso de archivos DWG con comentarios agregados, imágenes bidimensionales y modelos IFC superpuestos, como se ilustra en la Figura 5. Es importante destacar que no se elaboraron listas ni informes formales durante el proceso de compatibilización. En su lugar, todas las interferencias se registraron y compartieron a través de imágenes, y se documentaron y comunicaron mediante correo electrónico.

Tabla 2. Informe de compatibilidad híbrida

Fuente: elaboración propia (2023)


En este estudio de caso, el enfoque híbrido para la detección de interferencias reveló un mayor número de problemas en la categoría de verificación y coordinación. En su mayoría, estos problemas se refieren a las incompatibilidades entre el proyecto de arquitectura y los proyectos estructurales, que abarcan tanto el concreto como la estructura metálica. Se creó una visión general que asocia la categoría de arquitectura con una categoría unificada de estructura, que abarca ambos proyectos. A continuación, se presentan ejemplos visuales para facilitar la comunicación de las interferencias físicas (IF) identificadas. Estas IF se detectaron mediante un análisis manual y visual del modelo federado BIM, utilizando el proceso híbrido de verificación.

La Tabla 3, relaciona la categoría de arquitectura con una categoría única de estructura que contiene los dos proyectos (concreto y metálico). Se detectaron 19 interferencias, 17 en la categoría de interferencias físicas, 2 en la categoría de coordinación y ninguna en las otras categorías, dado que el proyecto aún se encuentra en la fase de legalización.

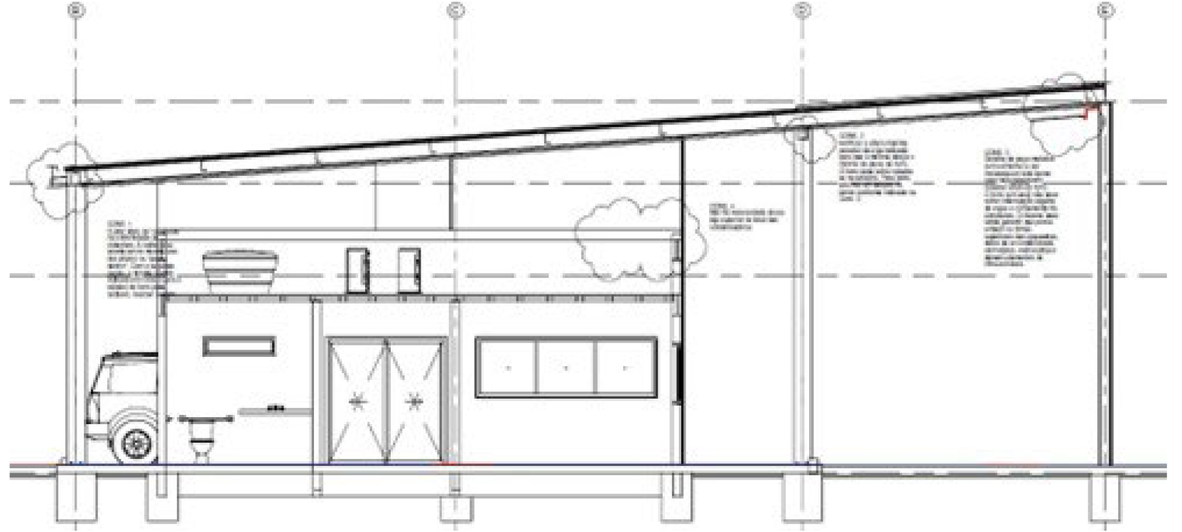
Figura 5. Corte arquitectónico del proyecto condominio Jardim Genebra

Fuente: Fittipaldi Arquitetura (2023)


Tabla 3. Total de interferencias en el proceso híbrido

Fuente: elaboración propia (2023)


La Tabla 4 presenta la matriz que relaciona las IF encontradas mediante la superposición de los proyectos y la búsqueda manual y visual de interferencias entre elementos constructivos, realizada a partir de la matriz propuesta por Ramírez (2018).

Tabla 4. Matriz de compatibilidad híbrida

Fuente: elaboración propia (2023)


Coordinación usando BIM

En el proceso de coordinación BIM, los conflictos más significativos surgieron al compararei proyecto de estructura de concreto con las demás disciplinas de proyecto. La aplicación del software Navisworks en la etapa de coordinación reveló la extensión de los conflictos generados por la falta de precisión en la modelización, especialmente en el área de arquitectura. En este contexto, solo se abordaron los elementos relacionados con la categoría de IF. El informe resultante se elaboró en función de los conflictos identificados entre los elementos estructurales y arquitectónicos, siguiendo el método definido en la matriz de coordinación. Se estructuró con imágenes extraídas del modelo federado para una mejor comprensión y documentación de estos problemas.

Tabla 5. Informe Navisworks

Fuente: elaboración propia (2023)


En la Tabla 5 se muestra el ejemplo de la primera página del informe generado automáticamente por el software Navisworks Manager. Se pueden configurar datos como el nivel donde se encuentra el conflicto, la imagen, la orientación en el espacio tridimensional y el nombre de los elementos en conflicto.

En la Tabla 6 se muestra la matriz de coordinación con todas las IF encontradas mediante el proceso de clash detection del software Navisworks. Se detectaron conflictos entre los elementos arquitectónicos: muros de mampostería, puertas, ventanas y techos y los elementos estructurales: columnas, losas y vigas. v

Tabla 6. Matriz de compatibilidad BIM

Fuente: elaboración propia (2023)


DISCUSIÓN

En este artículo se compara la cantidad de interferencias detectadas por el método híbrido y por el método BIM. El método híbrido identificó 17 interferencias, mientras que en el segundo método se encontraron 107 interferencias. Todas estas interferencias pertenecen a la categoría de coordinación entre arquitectura y estructura. El gráfico comparativo de los dos métodos se presenta en la Figura 6. En el proceso de detección de conflictos se compararon todos los elementos constructivos analizados. En el ámbito del proyecto de arquitectura, los elementos considerados incluyen mampostería, puertas, ventanas y techos. Es importante destacar que todas las interferencias físicas identificadas por el método híbrido también fueron detectadas por el método automatizado. También es importante resaltar que fueron identificados tres tipos de conflictos o interferencias: elementos que se superponen en el mismo espacio, interferencias de tolerancia geométrica o de distancia entre com ponentes con respecto a otros componentes y, en menor medida, colisión que afecta el flujo de trabajo y los horarios. El número superior de interferencias encontradas con el método BIM puede ser resultado del mayor número de interferencias de tolerancia geométrica encontradas, aunque se haya solicitado que se indique solamente una interferencia cuando dos elementos se encuentran en la misma posición.

Es relevante destacar que el software Navisworks convierte superficies curvas en planos y puntos, lo que resalta la importancia de ajustar la tolerancia y el tipo de colisión para minimizar resultados falsos positivos y falsos negativos. Se realizaron doce pruebas de acuerdo con la matriz de relación entre elementos arquitectónicos y estructurales. Estas pruebas se llevaron a cabo en la categoría Hard con una tolerancia de 0,01 metros. El aumento significativo en el número de interferencias entre elementos, como muros de mampostería y vigas, así como muros y columnas, es resultado del proceso de modelado, en el cual los muros de mampostería se modelan antes de la inserción del modelo estructural.

CONCLUSIONES

El principal objetivo de este estudio fue analizar el proceso de coordinación y establecer una comparación entre la coordinación automática ofrecida por la plataforma BIM y el método actualmente utilizado por la oficina de arquitectura Fittipaldi Arquitetura, basándose en un estudio de caso específico. La etapa de coordinación de proyectos desempeña un papel fundamental al proporcionar una visión integral del edificio considerando todos los proyectos involucrados en la construcción. Esta fase ofrece una visión panorámica de todo el proceso de concepción y documentación de un proyecto en el contexto de la AEC. La importancia de la coordinación no se limita solo a la resolución de cuestiones geométricas relacionadas con interferencias físicas, sino que también abarca aspectos legales, regulatorios y constructivos. La coordinación optimiza, racionaliza y acelera el proceso de construcción a través de la digitalización, lo que permite anticipar errores e incompatibilidades entre proyectos que, en muchos casos, solo se detectarían en el lugar de construcción.

El estudio de caso reveló que el proceso automatizado de detección de conflictos es notablemente más preciso y eficaz en la identificación de fallas e interferencias entre los diversos proyectos involucrados en la construcción de un edificio. Quedó claro que la mayoría de los conflictos ocurren entre los elementos estructurales, como vigas y col um nas, y los elementos arquitectónicos, como muros y cortinas de vidrio. Esto se debe a factores como imprecisiones en la modelización y al uso de tipologías estructurales con elementos (columnas y vigas) incorporados en la albañilería. Para que la detección automatizada de choques e interferencias entre elementos constructivos y estructurales sea posible, es imperativo que el proyecto estructural también se modele en BIM.

Los resultados comparativos de los datos demuestran que la adopción de BIM por parte de la oficina de arquitectura aporta beneficios y ventajas en las etapas de concepción, modelización y documentación, y se muestra eficaz en el proceso de coordinación de proyectos, ya que permite el uso completo de las herramientas de detección automática de conflictos disponibles en las herramientas BIM. En resumen, es importante destacar que los resultados enfatizan que BIM no se limita al uso de software de esta plataforma. Esta investigación enfatiza que el proceso BIM requiere una integración real entre los diseñadores, que va más allá de la integración entre modelos y archivos.


CONTRIBUCIONES Y AGRADECIMIENTOS

Este artículo deriva de una investigación llevada a cabo por el laboratorio de rehabilitación del ambiente construido (LabRAC), en el marco de la línea de investigación de estructuras y arquitectura de la Facultad de Arquitectura y Urbanismo de la Universidad de Brasilia.

Los autores de este trabajo han realizado las siguientes contribuciones: Pedro Praia: desarrollo de la investigación y estudios de caso, João da Costa Pantoja: dirección del proyecto de investigación de maestría, redacción del artículo, Mareio Augusto Roma Buzar: codirección del proyecto de investigación de maestría, redacción del artículo, Nathaly Sarasty Narváez: redacción, revisión, traducción, adecuación del artículo. Los autores declaran que no tienen conflictos de interés relevantes en relación con la investigación presentada.



REFERENCIAS

Akbari, S., Sheikhkhoshkar, M., Rahimian, F. P., El Haouzi, H. B., Najafi, M., y Talebi, S. (2024). Sustainability and building information modelling: Integration, research gaps, and future directions. Automation in Construction, 163, 105420. https://doi.org/10.10167j.autcon.2024.105420

Arayici, Y., Coates, P., Koskela, L., Kagioglou, M., Usher, C., y O'Reilly, K. (2011). Technology adoption in the BIM implementation for lean architectural practice. Automation in Construction, 20(2), 189-195. http://doi:10.1016/j.autcon.2010.09.016

Arumsari, P., y Al'farisi, M. K. (2017). Cost estimation using ministerial regulation of public work no. 11/2013 in construction projects. Earth and Environmental Science, 109(1), 012033. https://iopscience.iop.org/article/10.1088/1755-1315/109/1/012033

Autodesk. (2024). [fotografía]. https://www.autodesk.com.br/products/navisworks

Bardales, N. H. M., Rojas, L. C., y Marín, R. (2021). Implementación de la metodología BIM en el Perú: Una revisión. Revista Científica Pakamuros, 9(2). https://doi.org/10.37787/0b391g12

Brasil. (2018, 17 de mayo). Decreto 9.377. Diário Oficial da União. http://www.planalto.gov.br/ccivil_03/_ato2015-2018/2018/decreto/D9377.htm

Cao, D., Wang, G., Li, H., Skitmore, M., Huang, T., y Zhang, W. (2015). Practices and effectiveness of building information modelling in construction projects in China. Automation in Construction, 49, 113-122. http://doi.org/10.1016/j.autcon.2014.10.014

Cardoso Llach, D., y Burbano, A. (2020). Other computations: Digital technologies for architecture from the global south. Dearq, 27, 6-21. https://doi.org/10.18389/dearq27.2020.01

de Paula, H. M., Rodrigues, K. C., de Castro Mesquita, H., y Eduardo, R. C. (2017). Mapeamento sistemático de referências do uso do BIM na compatibilização de projetos na construção civil. REEC-Revista Eletrônica de Engenharia Civil, 13(1). https://doi.org/10.5216/reec.v13i1.45014

Dias, E. R., y Arantes, E. M. (2015). Interoperabilidade de ferramentas de modelagem paramétrica em projetos industriais. Gestão & Tecnologia de Projetos, 10(2), 35-46. https://www.revistas.usp.br/gestaodeprojetos/article/view/101369

Eastman, C., Teicholz, P., Sacks, R., y Liston, K. (2014). Manual de BIM: um guia de modelagem da informação da construção para arquitetos, engenheiros, gerentes, construtores e incorporadores. Bookman Editora.

Eastman, C. M. (2011). BIM handbook: A guide to building information modeling for owners, managers, designers, engineers and contractors. John Wiley & Sons.

Ferreira, R. C., y Santos, E. T. (2007). Características da representação 2D e suas limitações para a compatibilização espacial. Gestão & Tecnologia de Projetos, 2(2), 36-51. https://doi.org/10.4237/gtp.v2i2.39

Fittipaldi Arquitetura. (2023). Proyecto residencial- plantas y cortes arquitectónicos [Documento no publicado].

Goes, R. T. B. (2011). Compatibilização de projetos com a utilização de utilização de ferramentas BIM. Instituto de Pesquisa Tecnológicas do Estado de São Paulo.

Gourlis, G., y Kovacic, I. (2017). Building Information Modelling for analysis of energy efficient industrial buildings-A case study. Renewable and Sustainable Energy Reviews, 68, 953-963. https://doi.org/10.1016/j.rser.2016.02.009

Howell, I., y Batcheler, B. (2005). Building information modeling two years later-huge potential, some success and several limitations. The Laiserin Letter, 22(4), 3521-3528. http://www.laiserin.com/features/bim/newforma_bim.pdf

Hong, Y., Hammad, A. W., Sepasgozar, S., y Akbarnezhad, A. (2018). BIM adoption model for small and medium construction organisations in Australia. Engineering, Construction and Architectural Management, 26(2), 154-183. https://doi.org/10.1108/ECAM-04-2017-0064

Oh, M., Lee, J., Hong, S. W., y Jeong, Y. (2015). Integrated system for BIM-based collaborative design. Automation in Construction, 58, 196-206. https://doi.org/10.1016/j.autcon.2015.07.015

Pereira, M. D. dos S. (2016). Implementação do BIM nas organizações: Práticas e sugestões para a implementação [Dissertação de mestrado, Universidade do Minho]. Universidade do Minho, Escola de Engenharia. https://hdl.handle.net/1822/48366

Ramírez, M. C. (2018). Planejamento de projetos de edificações na administração pública: Estudo de caso com uso de ferramentas de modelagem da informação da construção [Dissertação de mestrado, Universidade de Brasília]. Repositório Institucional da Universidade de Brasília. http://repositorio.unb.br/handle/10482/35716

Shirowzhan, S., Sepasgozar, S. M., Edwards, D. J., Li, H., y Wang, C. (2020). BIM compatibility and its differentiation with interoperability challenges as an innovation factor. Automation in Construction, 112, 103086. https://doi.org/10.1016/j.autcon.2020.103086

Sienge, Grant Thornton. (2020). Mapeamento de maturidade BIM Brasil. https://www.sienge.com.br/relatorio-mapeamento-de-maturidade-bim/

Succar, B., y Kassem, M. (2015). Macro-BIM adoption: Conceptual structures. Automation in Construction, 57, 64-79. https://doi:10.1016/j.autcon.2015.04.018

Zardo, P., Mussi, A. Q., y Silva, J. L. D. (2020). Tecnologias digitais no processo de projeto contemporâneo: potencialidades e desafios à profissão e à academia. Ambiente Construído, 20, 425-440. https://doi.org/10.1590/s1678-86212020000200407

Zuluaga, C. M., y Albert, A. (2018). Preventing falls: Choosing compatible fall protection supplementary devices (FPSD) for bridge maintenance work using virtual prototyping. Safety Science, 108, 238-247. https://doi.org/10.1016/j.ssci.2017.08.006



Inicio



Este es un artículo publicado en acceso abierto bajo una licencia Creative Commons